Australia

# Sold $1,550,000 to $1,650,000

37 Craigie Road, Mount Martha, Vic 3934

# Location

Description

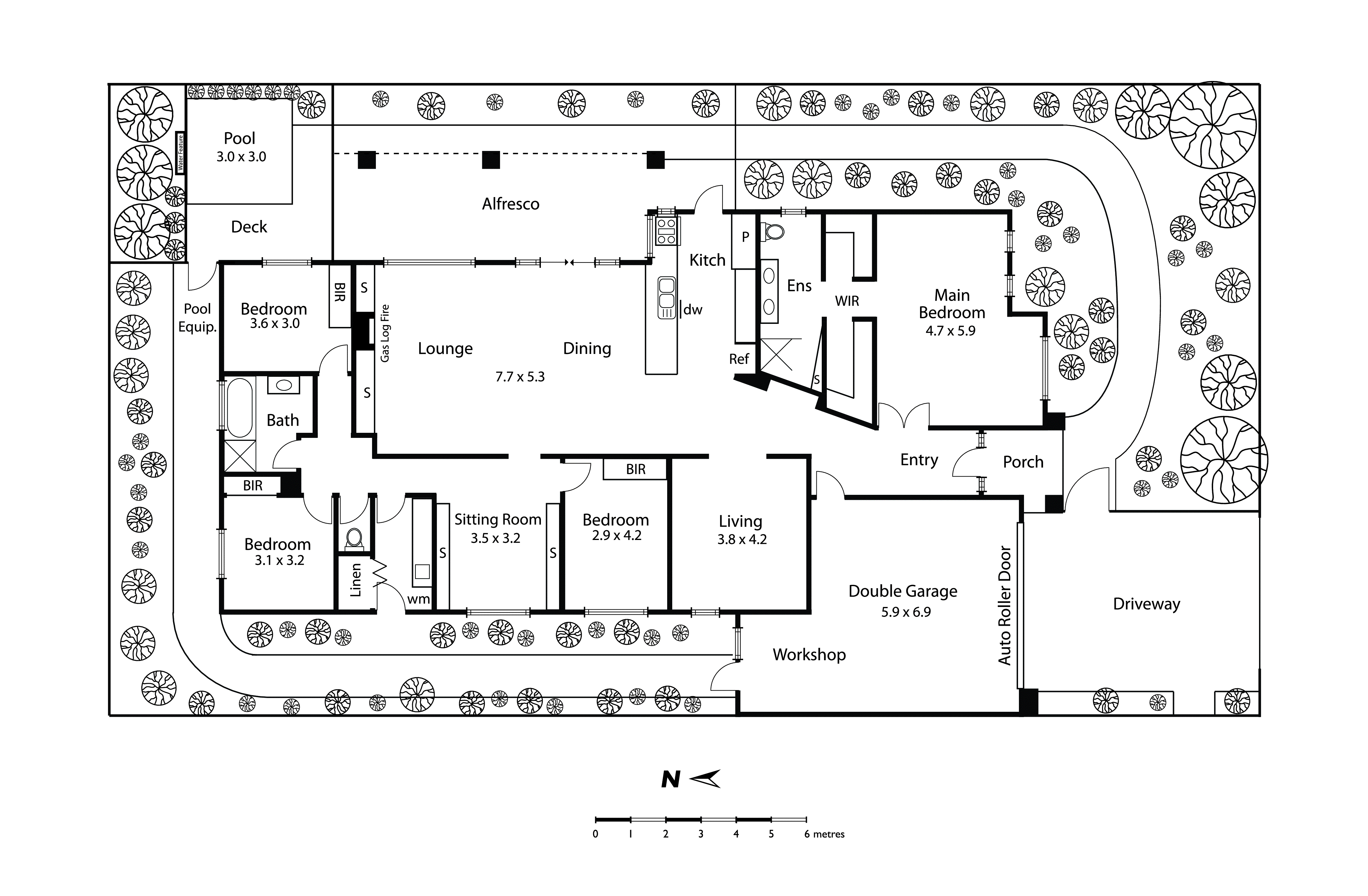
Bespoke-Built Beauty...400m to the Bay Bespoke built, brilliantly light-filled and beautifully beachside, this is substantial four bedroom, two bathroom single-level living to suit every low-maintenance lifestyle. Custom-designed and built by these meticulous owners, this well-zoned design positions a grand master-domain overlooking a lush lawn-free landscape to the front, a rear kids (grandkids or guest) wing facing north at the rear and multiple living zones in between.

Offering gracious Hamptons-inspired living in a traditional formal lounge, spacious lounge-dining in a vast entertainment zone, and almost as much living again outdoors in an all-season alfresco area, this expertly planned home has spaces to relax, entertain ... and even get to work in a versatile library-fitted sitting-room, perfect as work-at-home office.

Presented in classic coastal style with a streamlined all-white prestige appliance kitchen stepping direct to the al fresco zone, the home’s interiors are characterised by cool stone benchtops, authentic solid hardwood floors, plush carpets

and airy plantation shutters... all in natural beachside tones. With light white decking meeting the sand-toned surrounds of the in-ground, glass-fenced spa and a lush tropical-style landscape, the outdoors evoke

the best of beachside lifestyle ... with a touch of Noosa styling!

Prestige appointed with quality bathrooms including an elegant private ensuite beyond the master walk-through robe, this centrally heated, air-conditioned and solar-powered home has the added warmth of a glowing gas-fireplace, the enhanced security of CCTV surveillance, and the absolute ease of a generous double auto-garage extending to a workshop area.

A unique beachside lifestyle opportunity within an hour of Melbourne, this coastal classic has dog-friendly Craigie beach 400m away at the end of the street, the bathing boxes, Yacht Club and shopping village within minutes, Osborne Primary School within a walk and Balcombe Grammar in reach.

For further information, please contact Danielle Harvey on 0433 509 786 or Rachael Holman on 0416 194 295.

View More #

Floor Plans

Location

  • Contact the agency

    To request an inspection

  • # Call # Email

Danielle Harvey

Agent Name

# Report Listing

Looking for a property?

  • Top listings
  • Investment
  • Development
  • Personal home
  • Price reports
  • Suburb reports

Do you own a property?

  • Place a free listing
  • Services for private advertisers
  • Guide to selling your home
  • Insurance
  • Improve the photos of your listing
  • Value your property for free

Are you a real estate proffesional?

  • Publish your agencies properties
  • Already a client? Log into your account
  • Advertising on Australian Real Estate
  • Australian Real Estate data technology for property insights
  • Real Estate courses